3年生 建築デザイン演習Ⅱ 第2課題
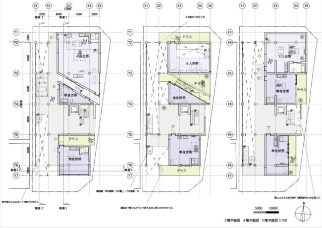
建築デザイン演習Ⅱ第2課題では市街地での集合住宅を題材に、住宅と入居者との関係、住宅と住宅との関係、住宅と周辺との関係、ワークプレイスとリビングスペースとの関係など、これからの多様なライフスタイルにふさわしい住環境について考えました。それぞれが見つけたテーマを実現させるための空間の組み立て方について、毎週全体で案をシェアしながら改善方法について意見を交わし、提案として成立させることを目指しました。個別指導ではなく全体でシェアしオープンに議論する授業スタイルとし、学生が主体的に考え課題に取り組み提案を行いました。

講評会には建築家のNaf Architect and Designの中佐昭夫さんを審査委員長として迎え、課題を担当している吉原美比古、和多田遼、藤本高志、姜順英、中土居宏紀、今和俊とともに優秀案を選出しました。
以下に優秀案を紹介します。
最最優秀案 齊藤竜也さん









優秀案 宮井良隆さん







4選 泰良海人さん







4選 高見弦希さん







7選 越智航汰さん



7選 小島孝太さん







7選 細川瑠月さん









